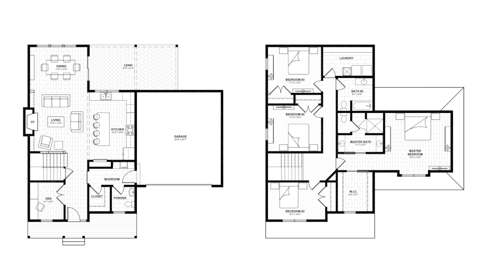
SPEC HOUSE

Town of Amherst

DATE

September 2018

PROJECT TYPE

Residential

SIZE

2,500 SF +/-

AFFILIATION

KARLdesign

TEAM

N/A

STATUS

Conceptual

ROLE

I worked on this house design to schematic design.

DESCRIPTION

This house was designed for a piece of property that I was going to purchase but ending up losing it in the end. The initial plan was to build this as a learning experience and sell it for a profit. That plan unfortunately did not work out.