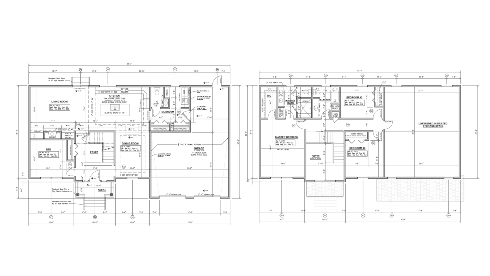
266 Amherston Drive

The project that started my construction passion

DATE

Completed November 2018

PROJECT TYPE

Residential

SIZE

3,000 SF +/-

AFFILIATION

KARLdesign

TEAM

Michael Bray, AIA, My Dad and I

STATUS

Completed

ROLE

The project was done out of necessity. I needed a place to live and figured that building was my best option at the time. I designed the house with limited residential design/ construction experience. I was the designer, laborer, assistant construction manager, and after this first time homeowner.

DESCRIPTION

In 2016, I found myself navigating a challenging real estate market, realizing that finding a move-in-ready home that met my needs would be difficult. I soon accepted that purchasing a house and putting in substantial work to shape it into what I envisioned was inevitable. Ultimately, I decided that building a brand-new home was the best option — and surprisingly, it proved to be more cost-effective despite the added effort.

Fortunately, I had my dad's guidance. When he was around my age, my grandfather had taught him how to build a house, and about thirty years later, my dad passed that knowledge down to me.

While this home may not stand out for its bold design, that was intentional. This project was all about learning — from understanding constructability to managing budgets and timelines. Taking on this challenge gave me invaluable experience that continues to shape my approach to future projects and better serve my clients.